WG Nürnberg Startseite 5,0 16 Google Rezensionen 1.900+ Followers Facebook Community

WG Stern 8-10 4 in Nürnberg

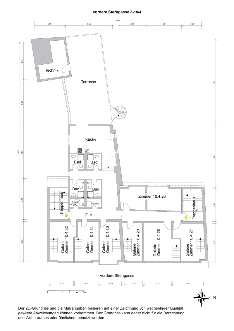
Die WG Stern 4 befindet sich im Haus der Vordere Sterngasse 8-10 in der 4. Etage, dort sind 40 Bewohner. Die WGs sind jeweils eine Einheit, also man kann nicht ohne eingeladen zu sein in eine andere Wohngemeinschaft laufen. In deiner Wohngemeinschaft hast du fünf Mitbewohner, da ist die Wohngemeinschaft seltenst leer. Du siehst auf jeden Fall pro Tag einen oder mehrere deiner Mitbewohner. Die Wohngemeinschaft Stern 2, 3 und 4 sind über Dachterrassen miteinander verbunden. Wenn die anderen WGs die Türe zur Terrasse öffnen könntest du bei ihnen vorbeisehen. Deine Dachterrasse hat ?m². Bei uns bekommst du zu der von dir angemieteten Zimmerfläche außerdem Allgemeinflächen, diese bestehen aus einer Küche/Aufenthaltsraum/Waschräume und vier Bädern. Die kalkulierbare Fläche (ohne Gänge und Schrägen) ist 6m². Alles was sich in den Allgemeinflächen befindet, ist natürlich komplett ausgestattet. Vom Teller bis zum Bügeleisen. Die Waschmaschine und den Trockner findest du in der WG. Das Fahrrad ist im Keller desselben Gebäudes gut untergebracht.

WG Info
Etage 4
Quadratmeter 6
Mitbewohner 6
Terrassenqm 60
Bäder 4
Fahrrad im Keller
Waschen in der WG
Map Karte

Bilder von WG Stern 8-10 4

WG Stern 8-10 4 Bild WG Stern 8-10 4 Bild WG Stern 8-10 4 Bild WG Stern 8-10 4 Bild WG Stern 8-10 4 Bild WG Stern 8-10 4 Bild WG Stern 8-10 4 Bild WG Stern 8-10 4 Bild WG Stern 8-10 4 Bild WG Stern 8-10 4 Bild WG Stern 8-10 4 Bild WG Stern 8-10 4 Bild WG Stern 8-10 4 Bild WG Stern 8-10 4 Bild WG Stern 8-10 4 Bild WG Stern 8-10 4 Bild WG Stern 8-10 4 Bild WG Stern 8-10 4 Bild WG Stern 8-10 4 Bild WG Stern 8-10 4 Bild WG Stern 8-10 4 Bild WG Stern 8-10 4 Bild WG Stern 8-10 4 Bild WG Stern 8-10 4 Bild WG Stern 8-10 4 Bild WG Stern 8-10 4 Bild

Grundrisse der WG

Grundriss WG Stern 8-10 4 Grundriss WG Stern 8-10 4 Grundriss WG Stern 8-10 4 Grundriss WG Stern 8-10 4 Grundriss WG Stern 8-10 4 Grundriss WG Stern 8-10 4

Zimmer in der WG

Zimmer +m²*
10.4.26 26m² 6m² Ansehen
10.4.27 36m² 6m² Ansehen
10.4.28 32m² 6m² Ansehen
10.4.29 25m² 6m² Ansehen
10.4.30 27m² 6m² Ansehen
10.4.31 31m² 6m² Ansehen
10.4.32 33m² 6m² Ansehen

Zimmer in WG Stern 8-10 4

Zimmer 10.4.26
26 m²
Zimmer 10.4.27
36 m²
Zimmer 10.4.28
32 m²
Zimmer 10.4.29
25 m²
Zimmer 10.4.30
27 m²
Zimmer 10.4.31
31 m² · 599€/Monat ✓ frei
Zimmer 10.4.32
33 m²

Alle WGs in Nürnberg

WG Gras 11 1 WG Gras 11 2 WG Gras 11 3 WG Gras 15 1 WG Gras 15 2 WG Gras 15 3 WG Gras 21 0 WG Gras 21 1 WG Gras 21 2 WG Gras 21 3 WG Klara 9 2 WG Klara 9 3 WG Klara 9 4 WG Stern 8-10 1 WG Stern 8-10 2 WG Stern 8-10 3 WG Stern 8-10 4
← Zur Startseite Freie Zimmer ansehen WhatsApp Kontakt

Bewerben

Wenn Du ein Zimmer haben möchtest schreibe uns eine Email an
info at wg-nuernberg.de
rufe uns an unter +49 (0) 911 2355810
oder kontaktiere uns via WhatsApp

Besichtigen

Wenn Du ein Zimmer oder die WGs besichtigen möchtest, frage einfach bei uns an. Genau gleich wie für die Bewerbung.